Продам однокімнатну квартиру в Кропивницькому 3V Волкова (№ 213-287-342)
Ціна: 50 600 $

Адреса: Г. Рятувальників, Кропивницький , Кіровоградська, Волкова
Характеристики
| Ціна: | 50 600 $ |
|---|---|
| № об'єкта: | 213-287-342 |
| Кімнат: | 1 розд |
| Поверх: | 9 / 9 ліфт |
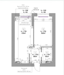
| Площа: | 46 / - / 21 м2 |
| Санвузол: | 1 сумісний |
| Балкон: | балкон |
Опис
Продам однокімнатну в 3V Волкова
-площа 46м2
-кухня 21м2
-новобудова
-стан від забудовника
-газове опалення
-закритий дві
-відеоспостереження, конс'єрж
-місце для ачтомобіля, дитяча площадка
Телефонуйте, покажемо в зручний для Вам час!

















